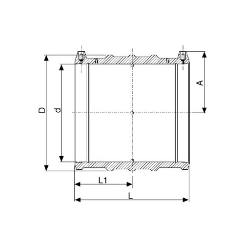
COUPLER SUPER LIGHTFIT EF 500

Product Code: 4601101

To top