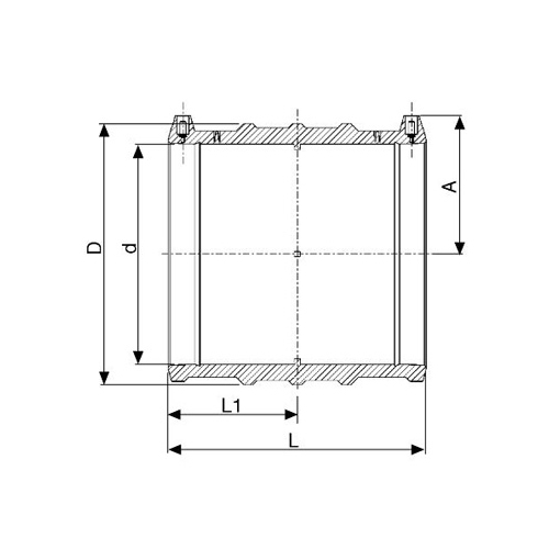
COUPLER SUPER LIGHTFIT EF 560

Product Code: 4601102

To top