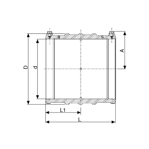
COUPLER SUPER LIGHTFIT EF 630

Product Code: 4601103

To top