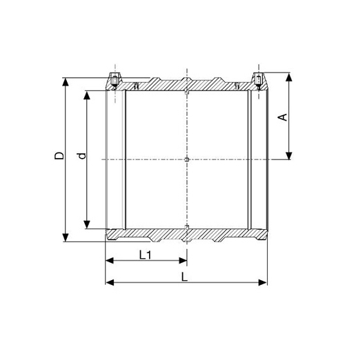
COUPLER SUPER LIGHTFIT EF 800

Product Code: 4601104

To top