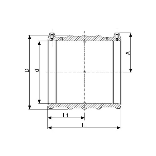
COUPLER SUPER LIGHTFIT EF 710

Product Code: 4601105

To top