Javascript seems to be disabled in your browser.You must have JavaScript enabled in your browser to utilize the functionality of this website.
Welcome Guest
Zoom
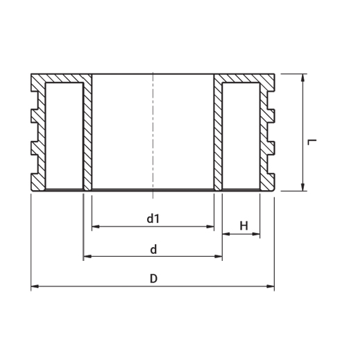
d (mm) 180d1 (mm) 157D (mm) 335H (mm) 66Unit Per Carton 4Weight (g) "3