Javascript seems to be disabled in your browser.You must have JavaScript enabled in your browser to utilize the functionality of this website.
Welcome Guest
Zoom
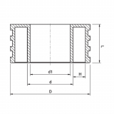
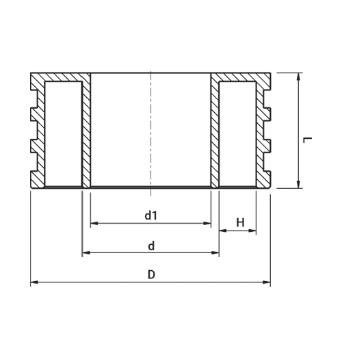
d (mm) 200d1 (mm) 176D (mm) 355H (mm) 56Unit Per Carton 2Weight (g) "3