Javascript seems to be disabled in your browser.You must have JavaScript enabled in your browser to utilize the functionality of this website.
Welcome Guest
Zoom
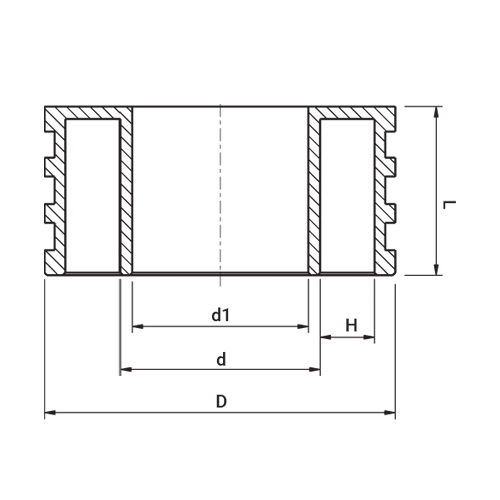
d (mm) 250d1 (mm) 220D (mm) 400H (mm) 54Unit Per Carton 2Weight (g) "3