Javascript seems to be disabled in your browser.You must have JavaScript enabled in your browser to utilize the functionality of this website.
Welcome Guest
Zoom
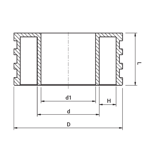
d (mm) 315d1 (mm) 278D (mm) 450H (mm) 46Unit Per Carton 2Weight (g) "5