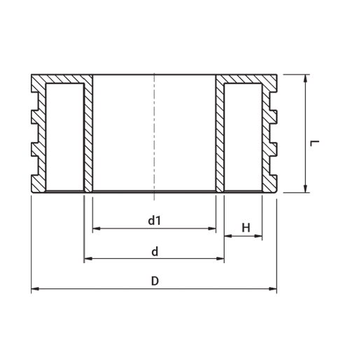
MAN HOLE ADAPTOR 500

Product Code: 3702007

To top