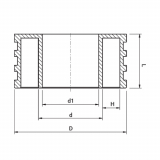
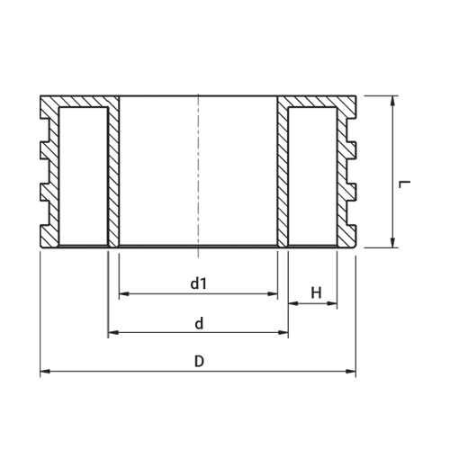
MAN HOLE ADAPTOR 560

Product Code: 3702008

To top