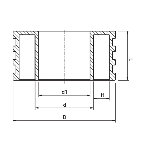
MAN HOLE ADAPTOR 630

Product Code: 3702009

To top