Javascript seems to be disabled in your browser.You must have JavaScript enabled in your browser to utilize the functionality of this website.
Welcome Guest
Zoom
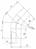
SDR 17 d (mm) 225 e (mm) 13,4 le1 (mm) 150 z1 (mm) 266 PN 10 Angle 22 Weight (kg) 5,34