Javascript seems to be disabled in your browser.You must have JavaScript enabled in your browser to utilize the functionality of this website.
Welcome Guest
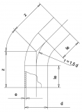
Zoom
SDR 17 d (mm) 500 e (mm) 29,7 le1 (mm) 350 z1 (mm) 650 PN 10 Angle 22 Weight (kg) 54