Javascript seems to be disabled in your browser.You must have JavaScript enabled in your browser to utilize the functionality of this website.
Welcome Guest
Zoom
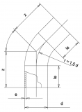
SDR 17 d (mm) 1000 e (mm) 59,3 le1 (mm) 450 z1 (mm) 1200 Angle 30 Weight (kg) 560