Javascript seems to be disabled in your browser.You must have JavaScript enabled in your browser to utilize the functionality of this website.
Welcome Guest
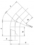
Zoom
SDR 17 d (mm) 280 e (mm) 16,6 le1 (mm) 250 z1 (mm) 400 PN 10 Angle 30 Weight (kg) 13,6