Javascript seems to be disabled in your browser.You must have JavaScript enabled in your browser to utilize the functionality of this website.
Welcome Guest
Zoom
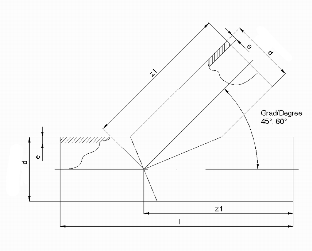
SDR 11 d (mm) 63 e (mm) 5,8 le1 (mm) 69 z1 (mm) 162 z2 (mm) 97 PN 16 Length (mm) 258 Angle 45 Weight (kg) 0,465