Javascript seems to be disabled in your browser.You must have JavaScript enabled in your browser to utilize the functionality of this website.
Welcome Guest
Zoom
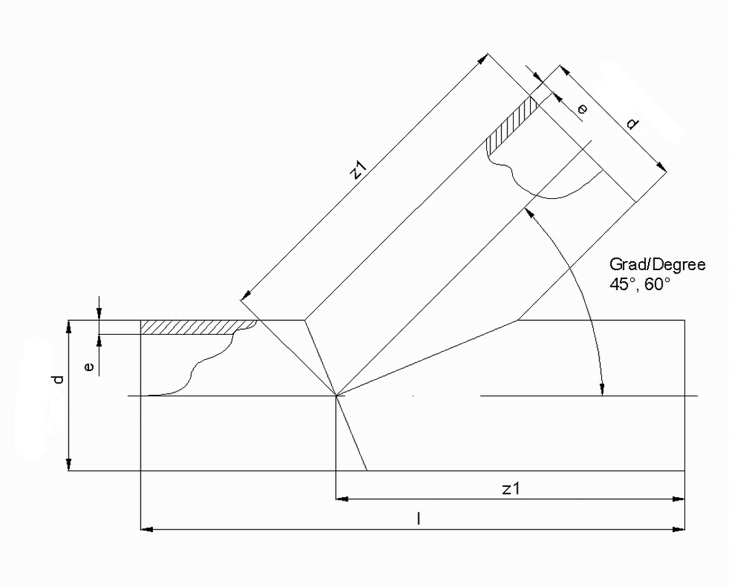
SDR 17 d (mm) 63 e (mm) 3,8 le1 (mm) 70 z1 (mm) 94 z2 (mm) 162 PN 10 Length (mm) 256 Angle 45 Weight (kg) 0,41