Javascript seems to be disabled in your browser.You must have JavaScript enabled in your browser to utilize the functionality of this website.
Welcome Guest
Zoom
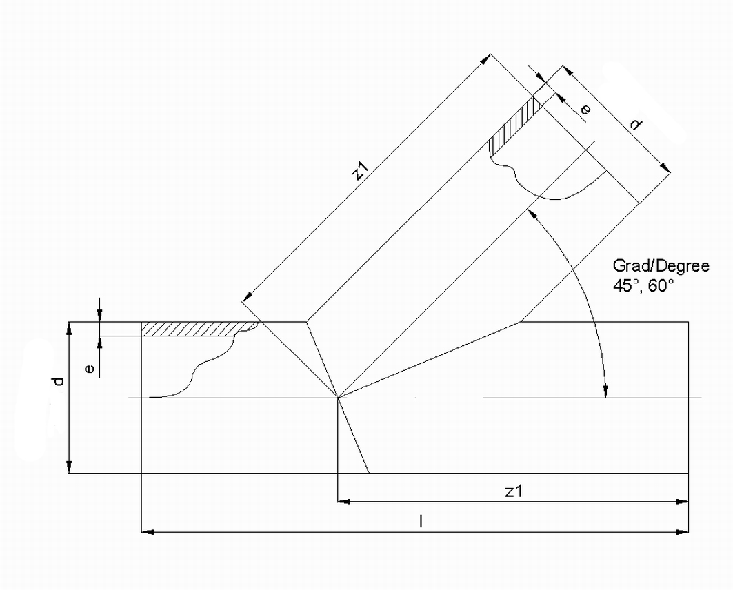
SDR 17 d (mm) 110 e (mm) 6,6 le1 (mm) 90 z1 (mm) 139 z2 (mm) 260 PN 10 Length (mm) 401 Angle 45 Weight (kg) 2,025