Javascript seems to be disabled in your browser.You must have JavaScript enabled in your browser to utilize the functionality of this website.
Welcome Guest
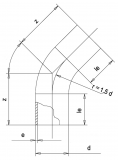
Zoom
SDR 7,4 d (mm) 110 e (mm) 15,1 le1 (mm) 150 z1 (mm) 243 Angle 45 Weight (kg) 2,113