Javascript seems to be disabled in your browser.You must have JavaScript enabled in your browser to utilize the functionality of this website.
Welcome Guest
Zoom
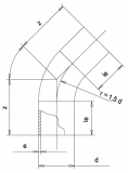
SDR 11 d (mm) 280 e (mm) 25,4 le1 (mm) 250 z1 (mm) 460 PN 16 Angle 45 Weight (kg) 20,05