Javascript seems to be disabled in your browser.You must have JavaScript enabled in your browser to utilize the functionality of this website.
Welcome Guest
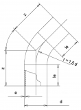
Zoom
SDR 17 d (mm) 400 e (mm) 23,7 le1 (mm) 300 z1 (mm) 730 PN 10 Angle 60 Weight (kg) 38,2