Javascript seems to be disabled in your browser.You must have JavaScript enabled in your browser to utilize the functionality of this website.
Welcome Guest
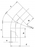
Zoom
SDR 17 d (mm) 560 e (mm) 33,2 le1 (mm) 350 z1 (mm) 930 PN 10 Angle 60 Weight (kg) 98,2