Javascript seems to be disabled in your browser.You must have JavaScript enabled in your browser to utilize the functionality of this website.
Welcome Guest
Zoom
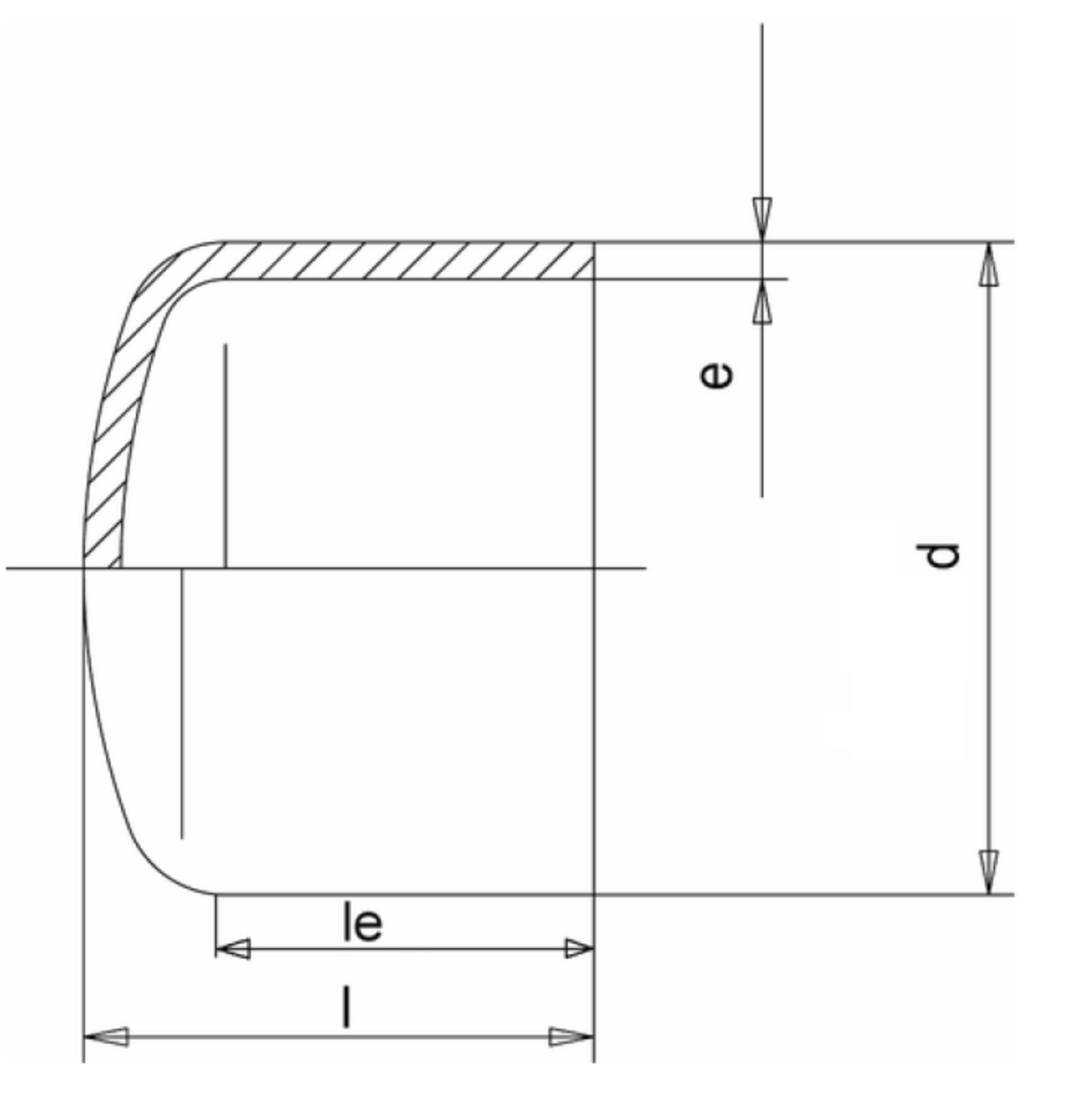
SDR 11 d (mm) 50 e (mm) 4,6 le (mm) 58 PN 16 Length (mm) 71 Weight (kg) 0,05