Javascript seems to be disabled in your browser.You must have JavaScript enabled in your browser to utilize the functionality of this website.
Welcome Guest
Zoom
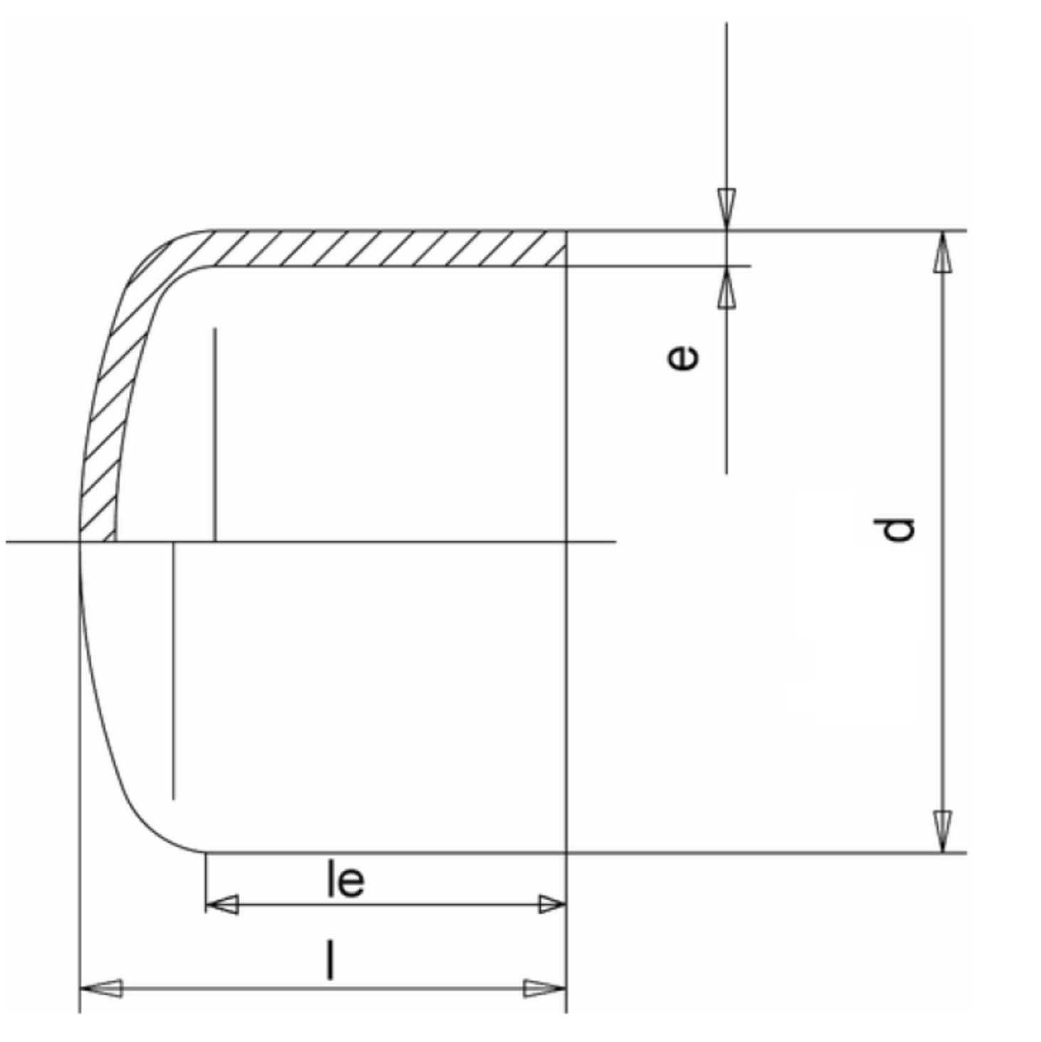
SDR 11 d (mm) 110 e (mm) 10 le (mm) 88 PN 16 Length (mm) 122 Weight (kg) 0,38