Javascript seems to be disabled in your browser.You must have JavaScript enabled in your browser to utilize the functionality of this website.
Welcome Guest
Zoom
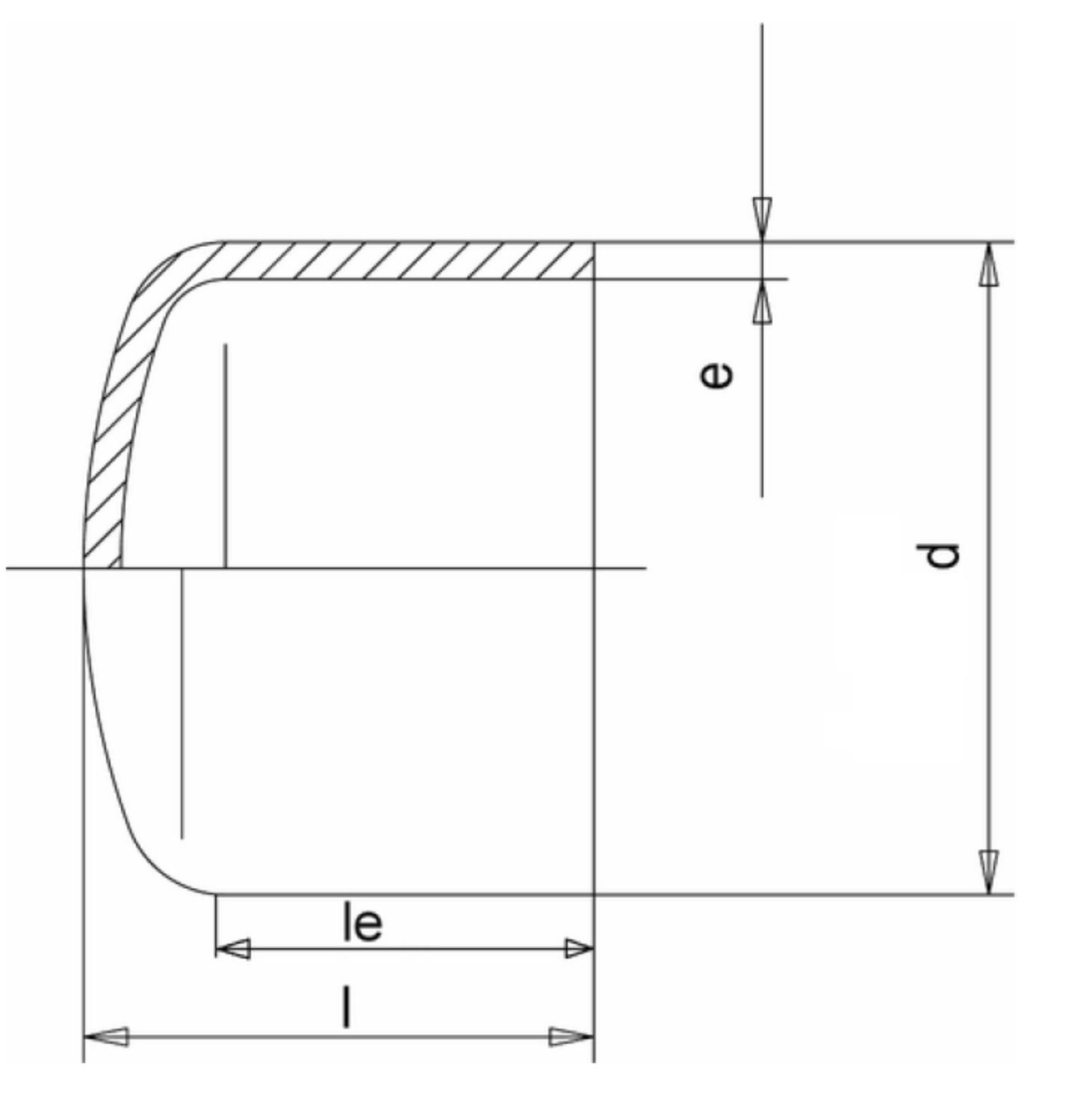
SDR 11 d (mm) 400 e (mm) 36,3 le (mm) 193 PN 16 Length (mm) 316 Weight (kg) 13,68