Javascript seems to be disabled in your browser.You must have JavaScript enabled in your browser to utilize the functionality of this website.
Welcome Guest
Zoom
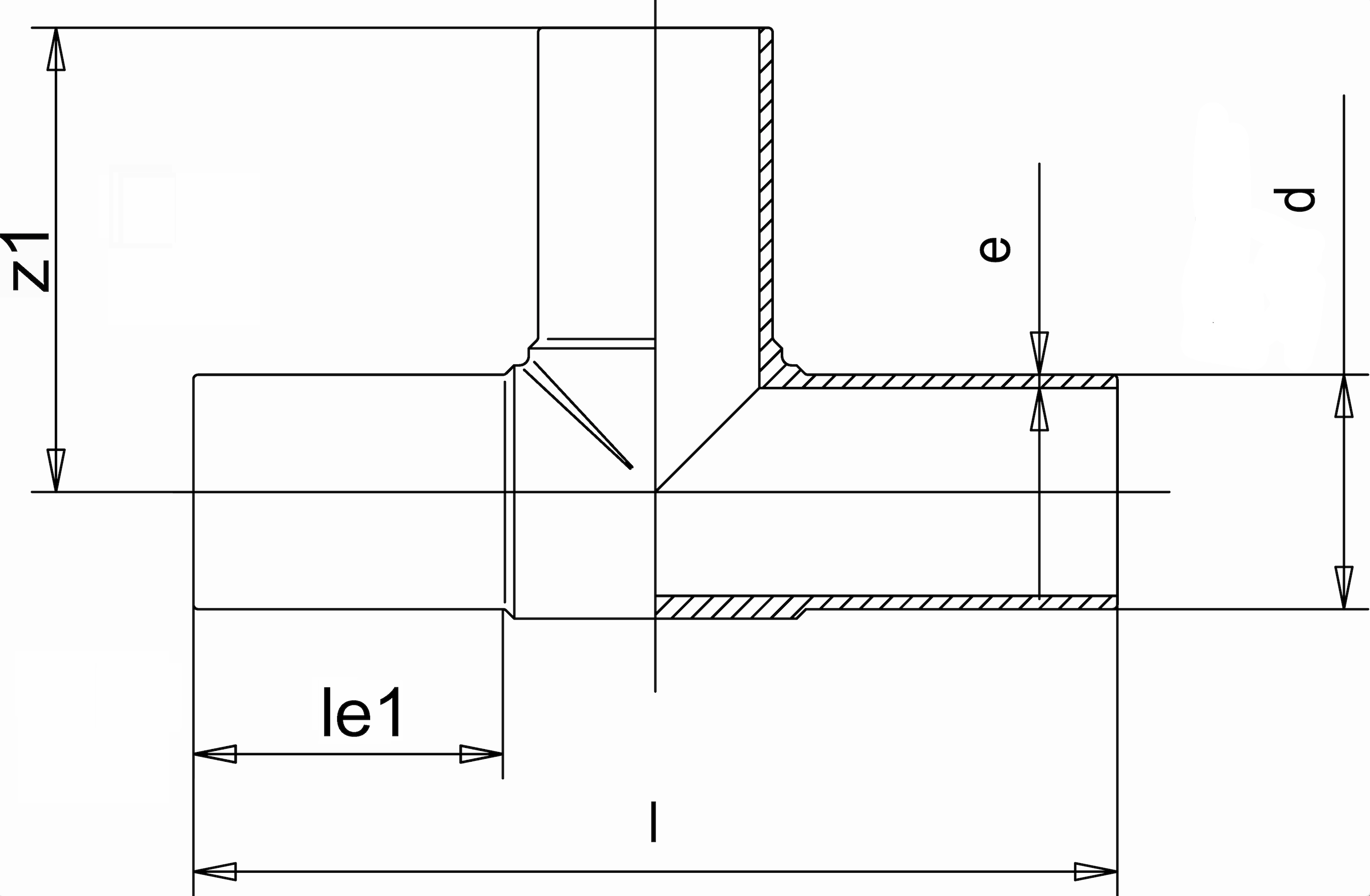
SDR 17 d (mm) 560 e (mm) 33,2 le1 (mm) 245 z1 (mm) 600 Length (mm) 1200 Weight (kg) 139