Javascript seems to be disabled in your browser.You must have JavaScript enabled in your browser to utilize the functionality of this website.
Welcome Guest
Zoom
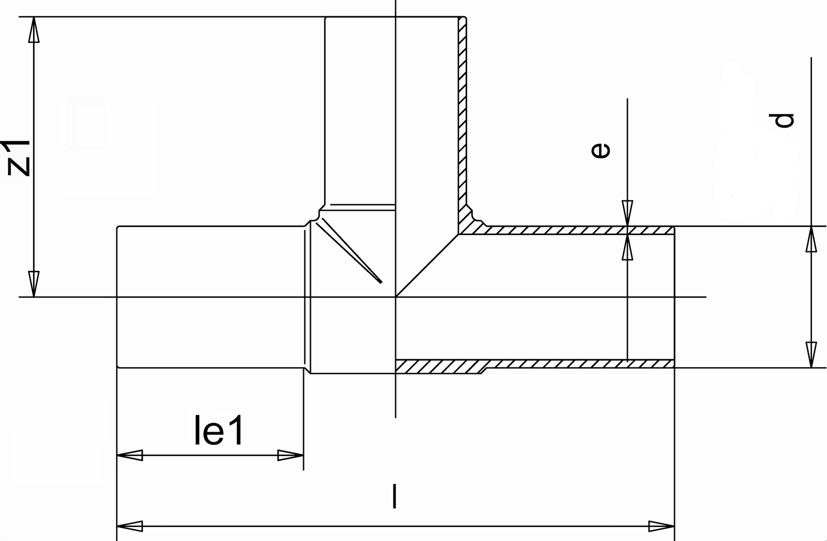
SDR 11 d (mm) 63 e (mm) 5,8 le1 (mm) 65 z1 (mm) 105 PN 16 Length (mm) 216 Weight (kg) 0,335