Javascript seems to be disabled in your browser.You must have JavaScript enabled in your browser to utilize the functionality of this website.
Welcome Guest
Zoom
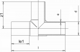
SDR 11 d (mm) 160 e (mm) 14,6 le1 (mm) 104 z1 (mm) 206 PN 16 Length (mm) 413 Weight (kg) 4,29