Javascript seems to be disabled in your browser.You must have JavaScript enabled in your browser to utilize the functionality of this website.
Welcome Guest
Zoom
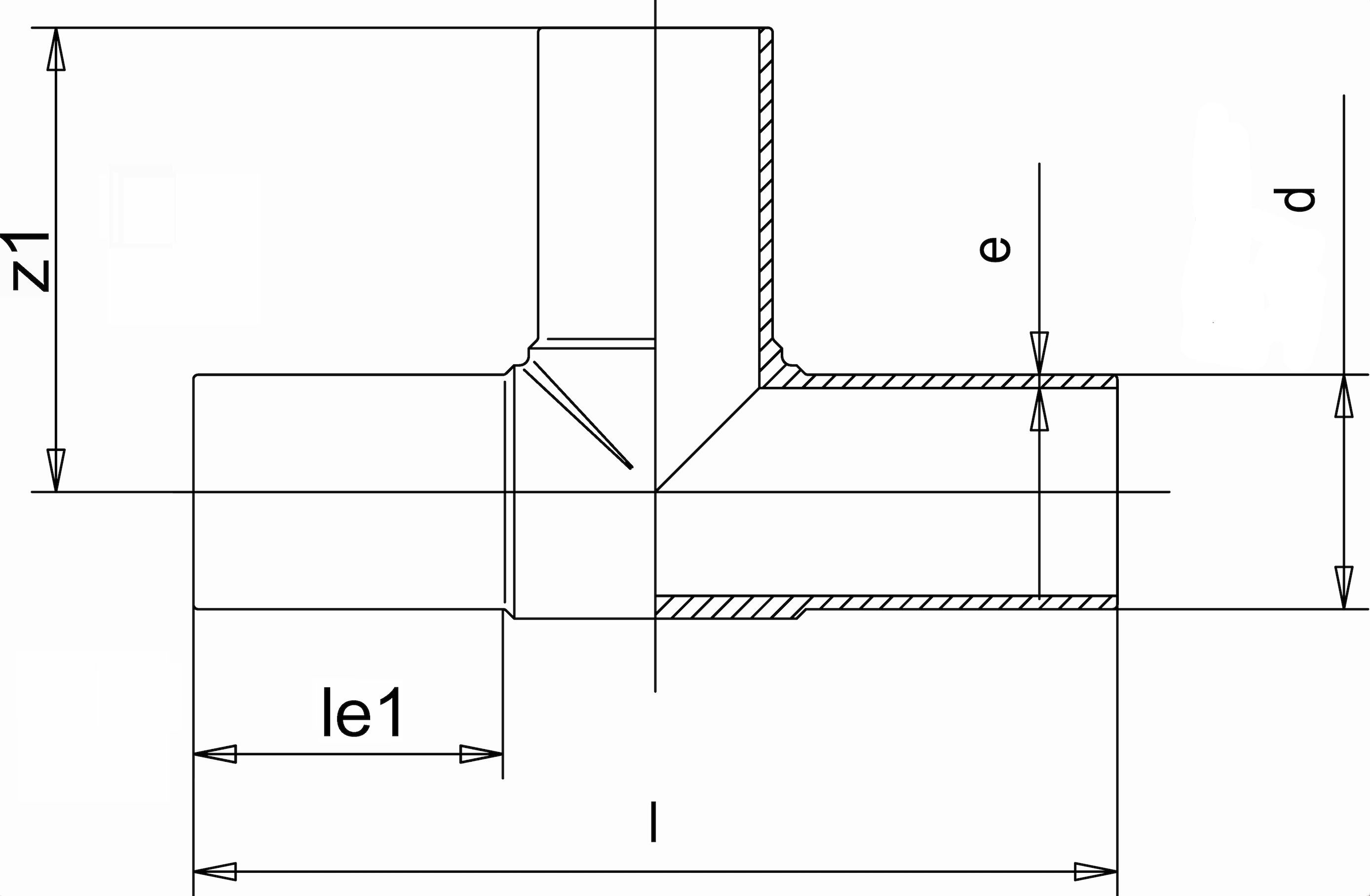
SDR 11 d (mm) 180 e (mm) 16,4 le1 (mm) 143 z1 (mm) 260 PN 16 Length (mm) 528 Weight (kg) 6,89