Javascript seems to be disabled in your browser.You must have JavaScript enabled in your browser to utilize the functionality of this website.
Welcome Guest
Zoom
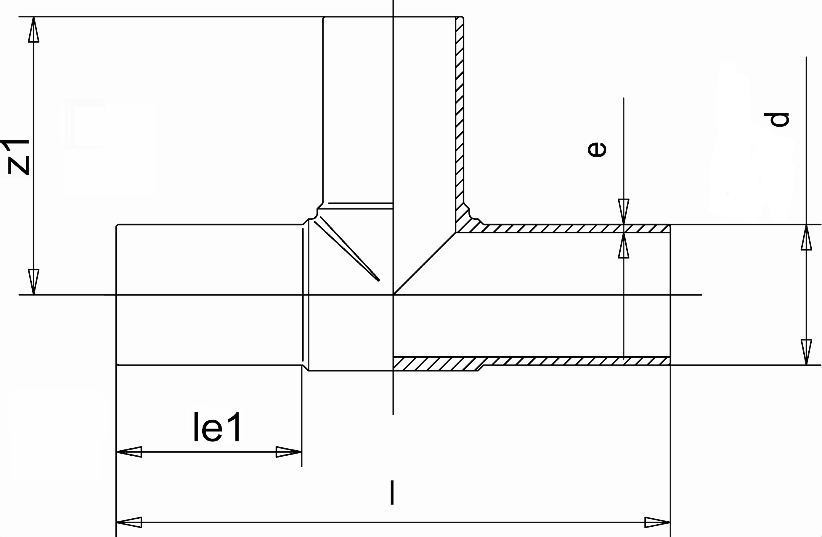
SDR 11 d (mm) 200 e (mm) 18,2 le1 (mm) 124 z1 (mm) 253 PN 16 Length (mm) 505 Weight (kg) 8,33