Javascript seems to be disabled in your browser.You must have JavaScript enabled in your browser to utilize the functionality of this website.
Welcome Guest
Zoom
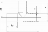
SDR 11 d (mm) 225 e (mm) 20,5 le1 (mm) 129 z1 (mm) 278 PN 16 Length (mm) 559 Weight (kg) 11,7