Javascript seems to be disabled in your browser.You must have JavaScript enabled in your browser to utilize the functionality of this website.
Welcome Guest
Zoom
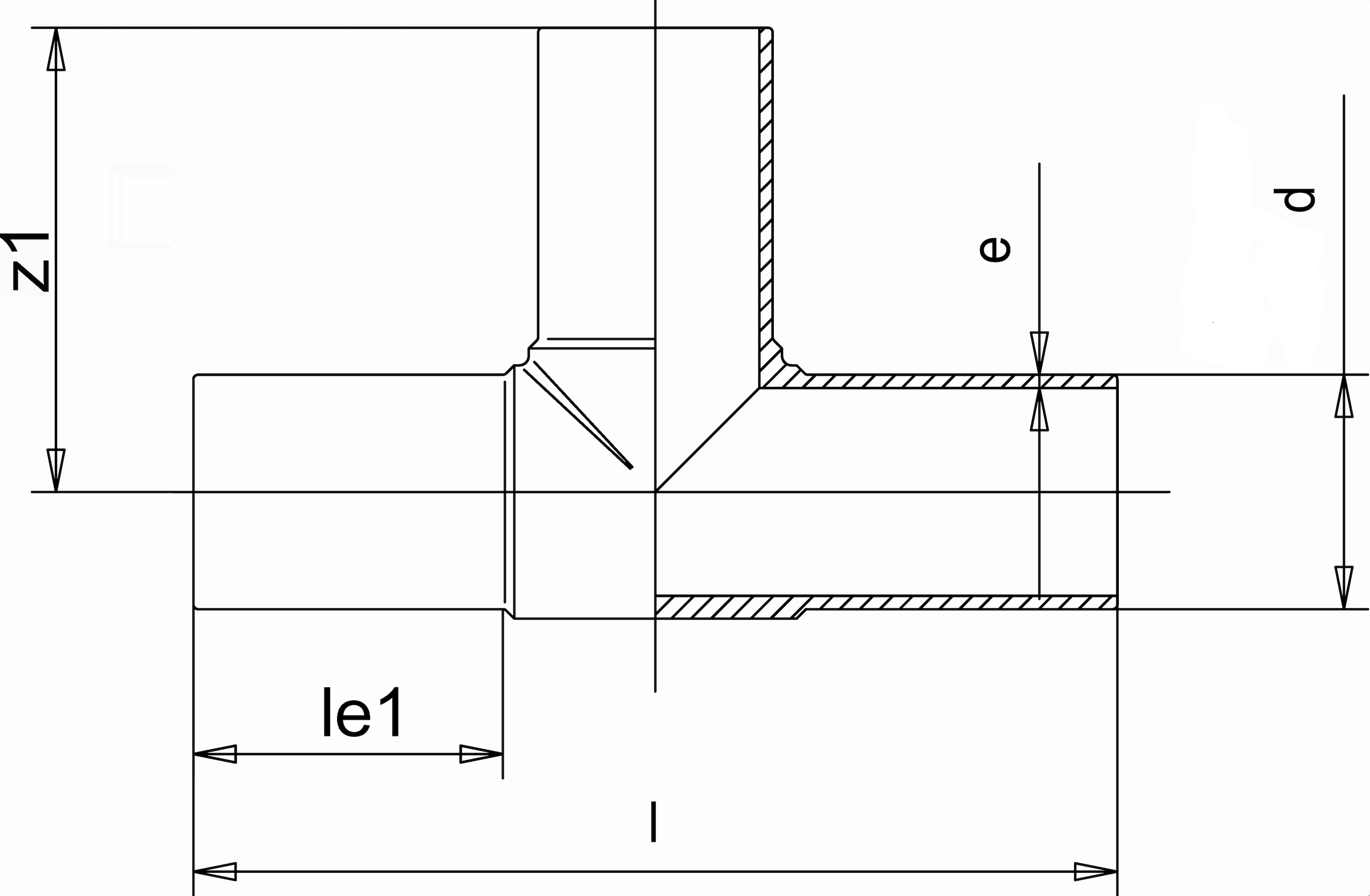
SDR 11 d (mm) 250 e (mm) 22,7 le1 (mm) 132 z1 (mm) 291 PN 16 Length (mm) 582 Weight (kg) 13,95