Javascript seems to be disabled in your browser.You must have JavaScript enabled in your browser to utilize the functionality of this website.
Welcome Guest
Zoom
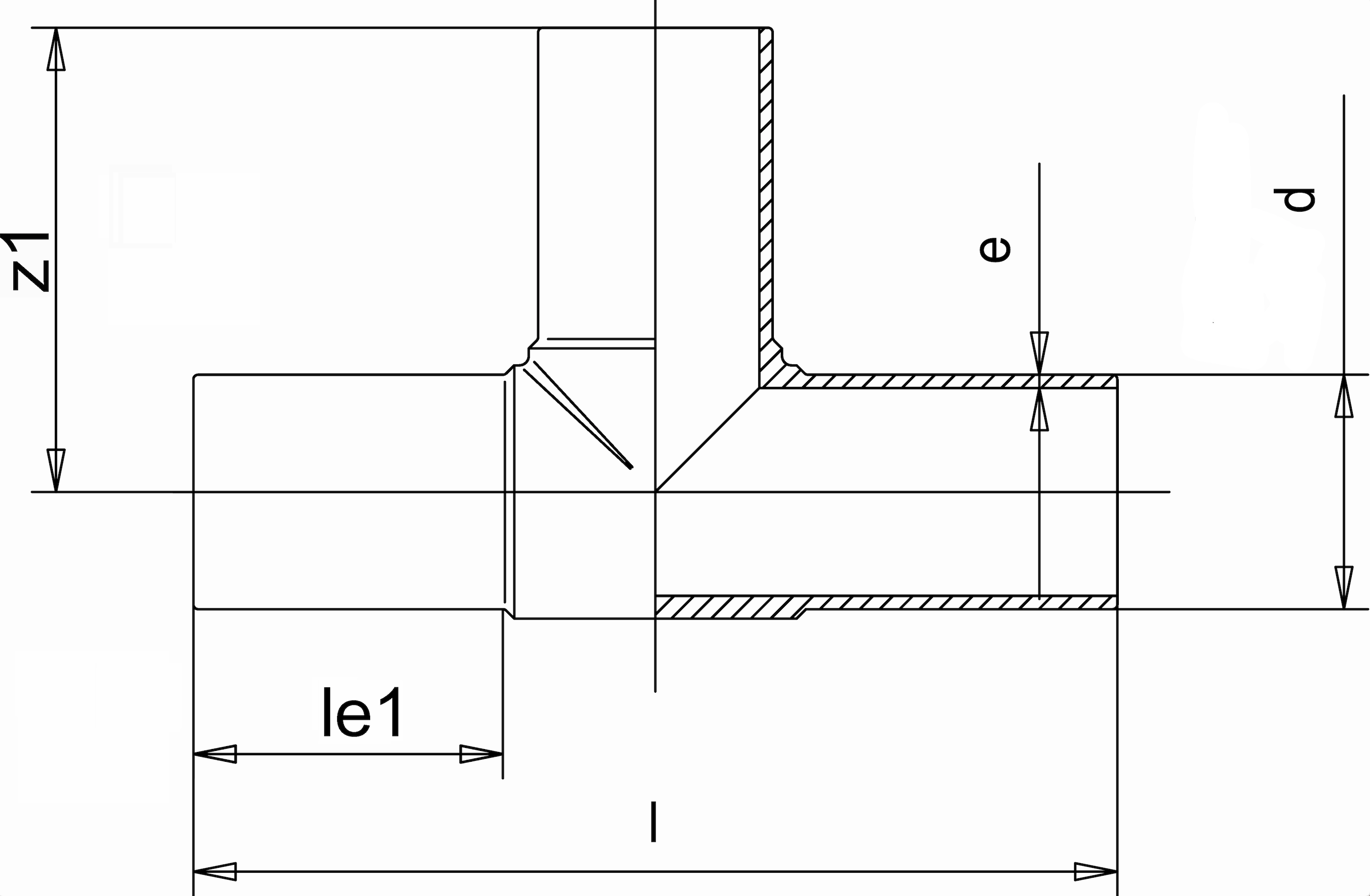
SDR 11 d (mm) 280 e (mm) 25,4 le1 (mm) 133 z1 (mm) 312 PN 16 Length (mm) 622 Weight (kg) 18,86