Javascript seems to be disabled in your browser.You must have JavaScript enabled in your browser to utilize the functionality of this website.
Welcome Guest
Zoom
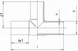
SDR 11 d (mm) 315 e (mm) 28,6 le1 (mm) 153 z1 (mm) 351 PN 16 Length (mm) 690 Weight (kg) 26,37