Javascript seems to be disabled in your browser.You must have JavaScript enabled in your browser to utilize the functionality of this website.
Welcome Guest
Zoom
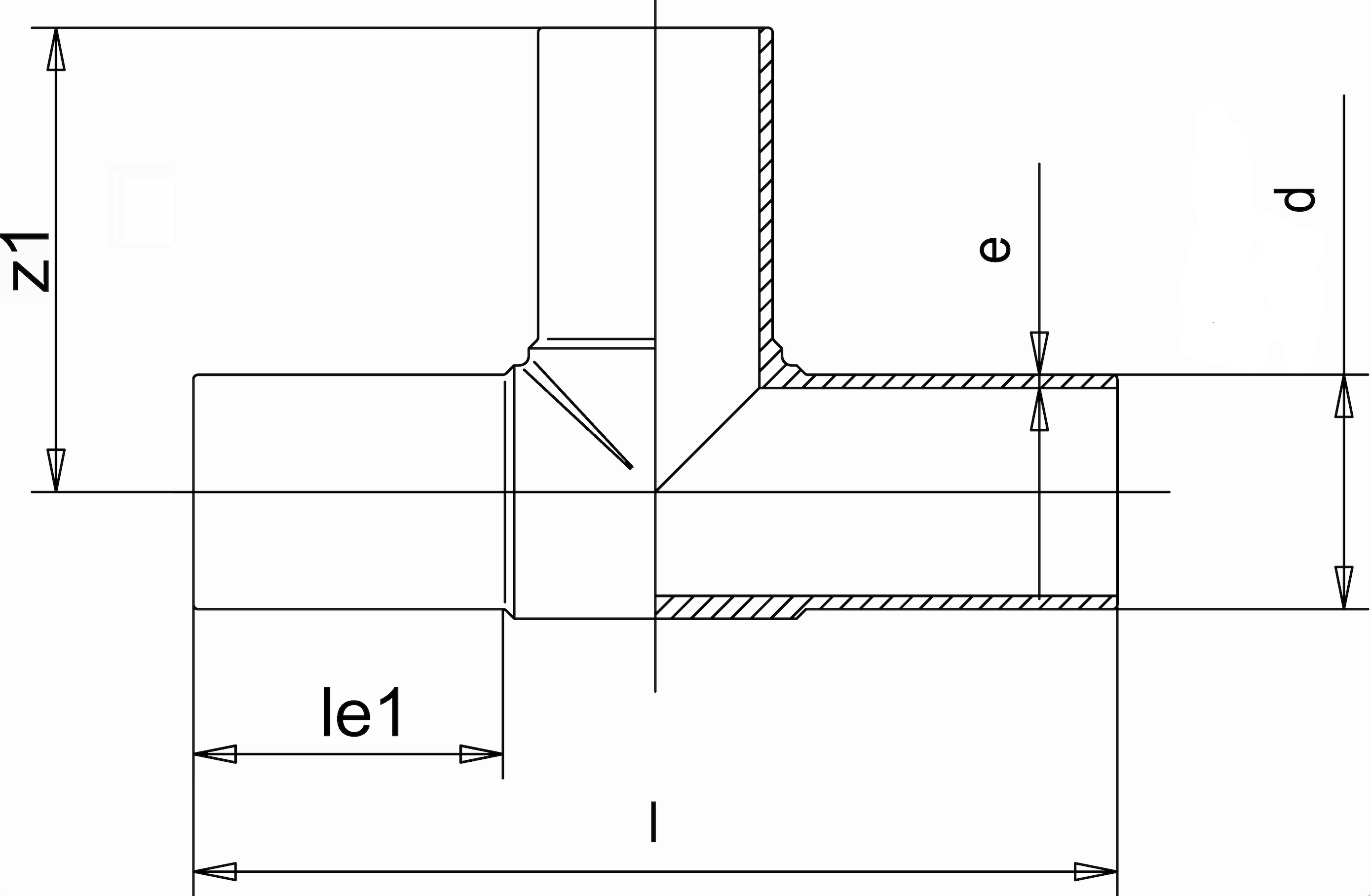
SDR 17 d (mm) 90 e (mm) 5,4 le1 (mm) 81 z1 (mm) 137 PN 10 Length (mm) 277 Weight (kg) 0,69