Javascript seems to be disabled in your browser.You must have JavaScript enabled in your browser to utilize the functionality of this website.
Welcome Guest
Zoom
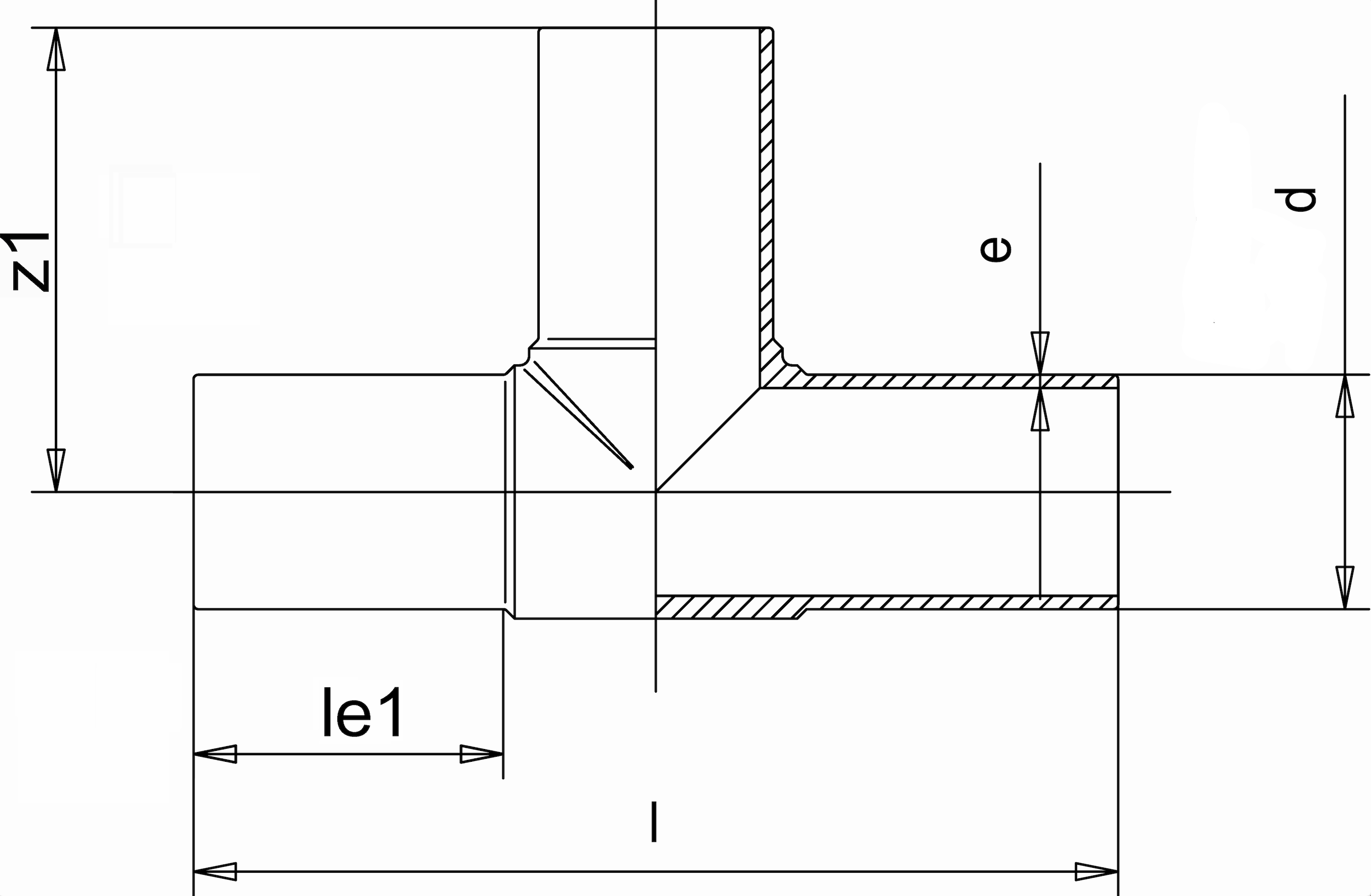
SDR 17 d (mm) 160 e (mm) 9,5 le1 (mm) 104 z1 (mm) 206 PN 10 Length (mm) 410 Weight (kg) 3,01