Javascript seems to be disabled in your browser.You must have JavaScript enabled in your browser to utilize the functionality of this website.
Welcome Guest
Zoom
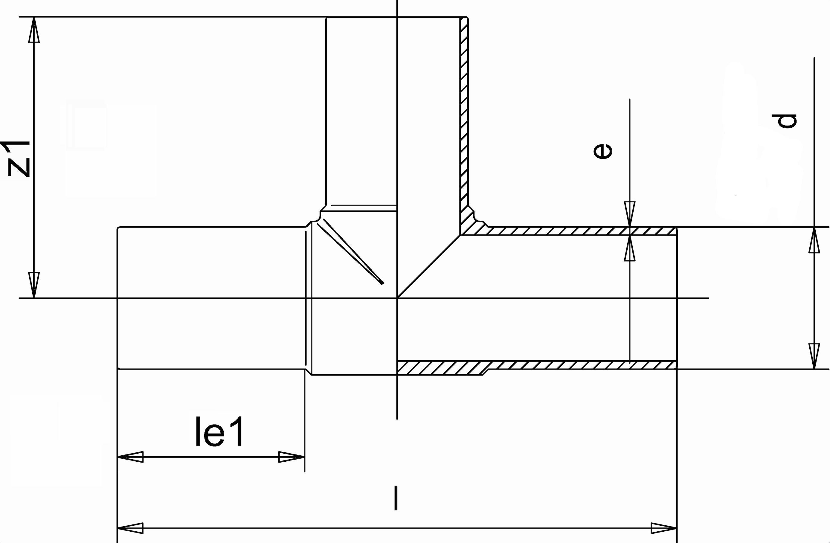
SDR 17 d (mm) 250 e (mm) 14,8 le1 (mm) 132 z1 (mm) 288 PN 10 Length (mm) 576 Weight (kg) 9,38