Javascript seems to be disabled in your browser.You must have JavaScript enabled in your browser to utilize the functionality of this website.
Welcome Guest
Zoom
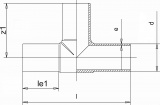
SDR 11 d (mm) 20 e (mm) 2 le1 (mm) 41 z1 (mm) 54 PN 16 Length (mm) 108 Weight (kg) 0,02