Javascript seems to be disabled in your browser.You must have JavaScript enabled in your browser to utilize the functionality of this website.
Welcome Guest
Zoom
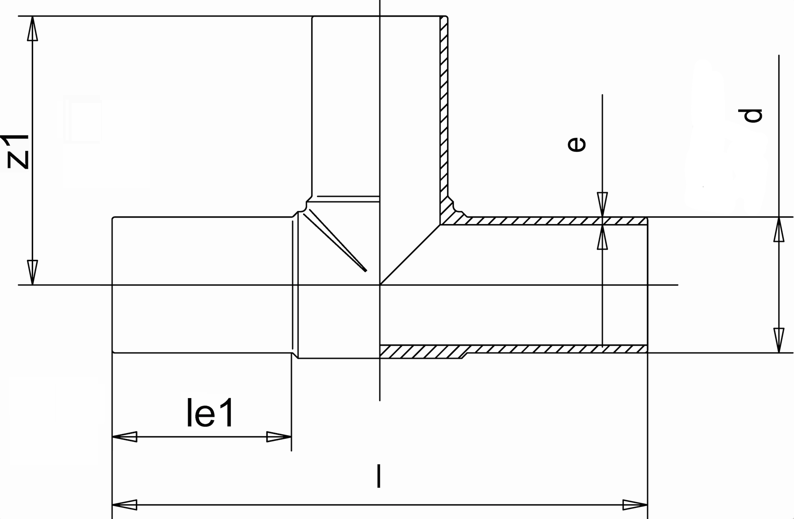
SDR 11 d (mm) 355 e (mm) 32,2 le1 (mm) 167 z1 (mm) 414 PN 16 Length (mm) 829 Weight (kg) 38,1