Javascript seems to be disabled in your browser.You must have JavaScript enabled in your browser to utilize the functionality of this website.
Welcome Guest
Zoom
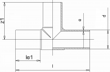
SDR 11 d (mm) 400 e (mm) 36,3 le1 (mm) 198 z1 (mm) 457 PN 16 Length (mm) 913 Weight (kg) 52,01