Javascript seems to be disabled in your browser.You must have JavaScript enabled in your browser to utilize the functionality of this website.
Welcome Guest
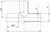
Zoom
SDR 17 d (mm) 355 e (mm) 21,1 le1 (mm) 165 z1 (mm) 408 PN 10 Length (mm) 818 Weight (kg) 25,975