Javascript seems to be disabled in your browser.You must have JavaScript enabled in your browser to utilize the functionality of this website.
Welcome Guest
Zoom
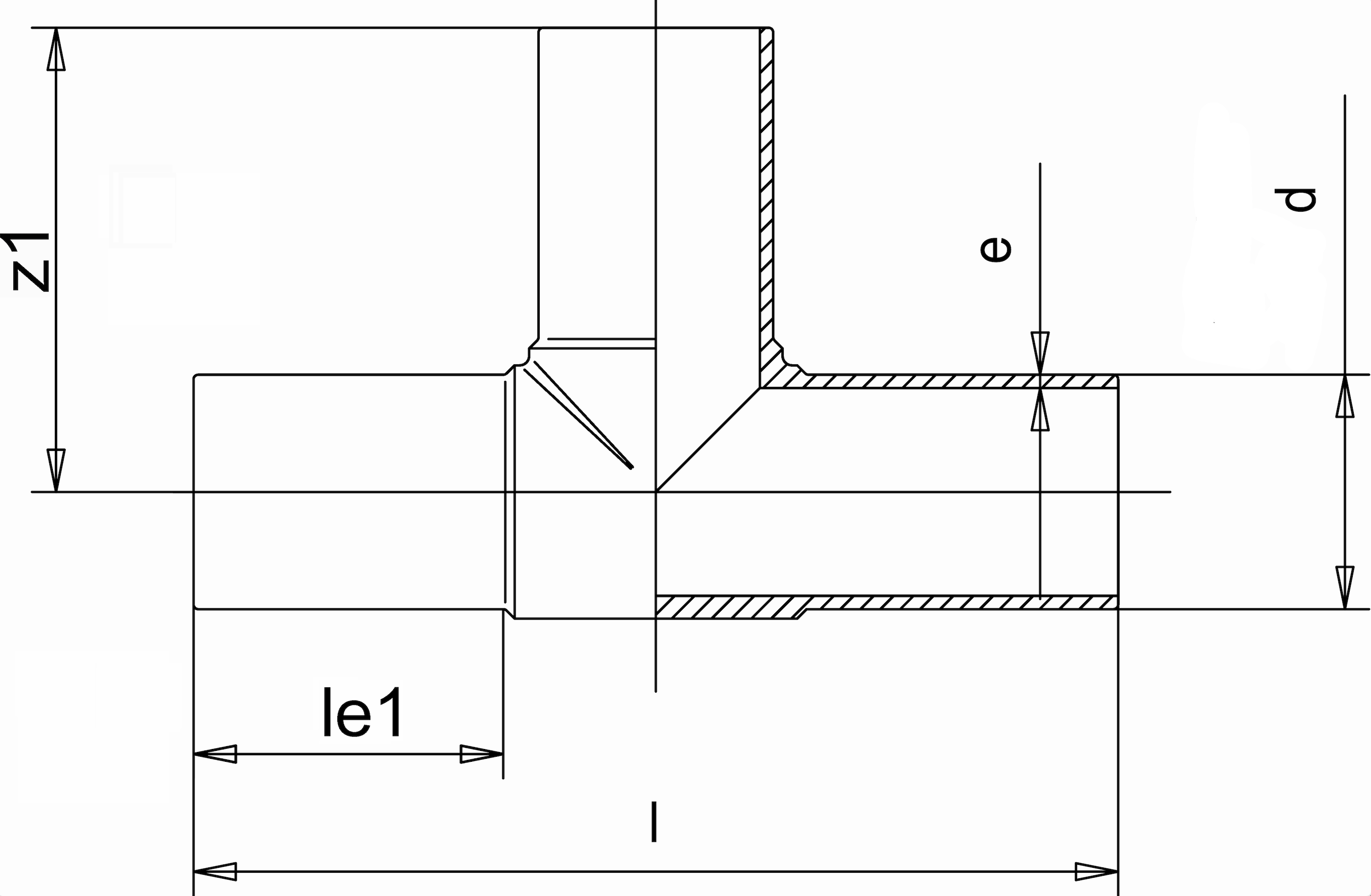
SDR 17 d (mm) 400 e (mm) 23,7 le1 (mm) 197 z1 (mm) 455 PN 10 Length (mm) 910 Weight (kg) 36,06