Javascript seems to be disabled in your browser.You must have JavaScript enabled in your browser to utilize the functionality of this website.
Welcome Guest
Zoom
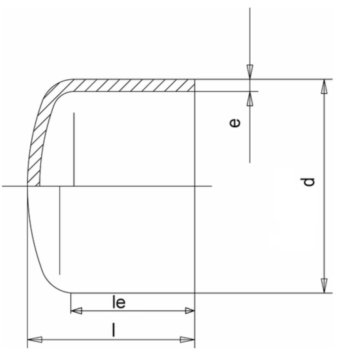
SDR 11 d (mm) 355 e (mm) 32,2 PN 16 Length (mm) 75 Weight (kg) 5,3