Javascript seems to be disabled in your browser.You must have JavaScript enabled in your browser to utilize the functionality of this website.
Welcome Guest
Zoom
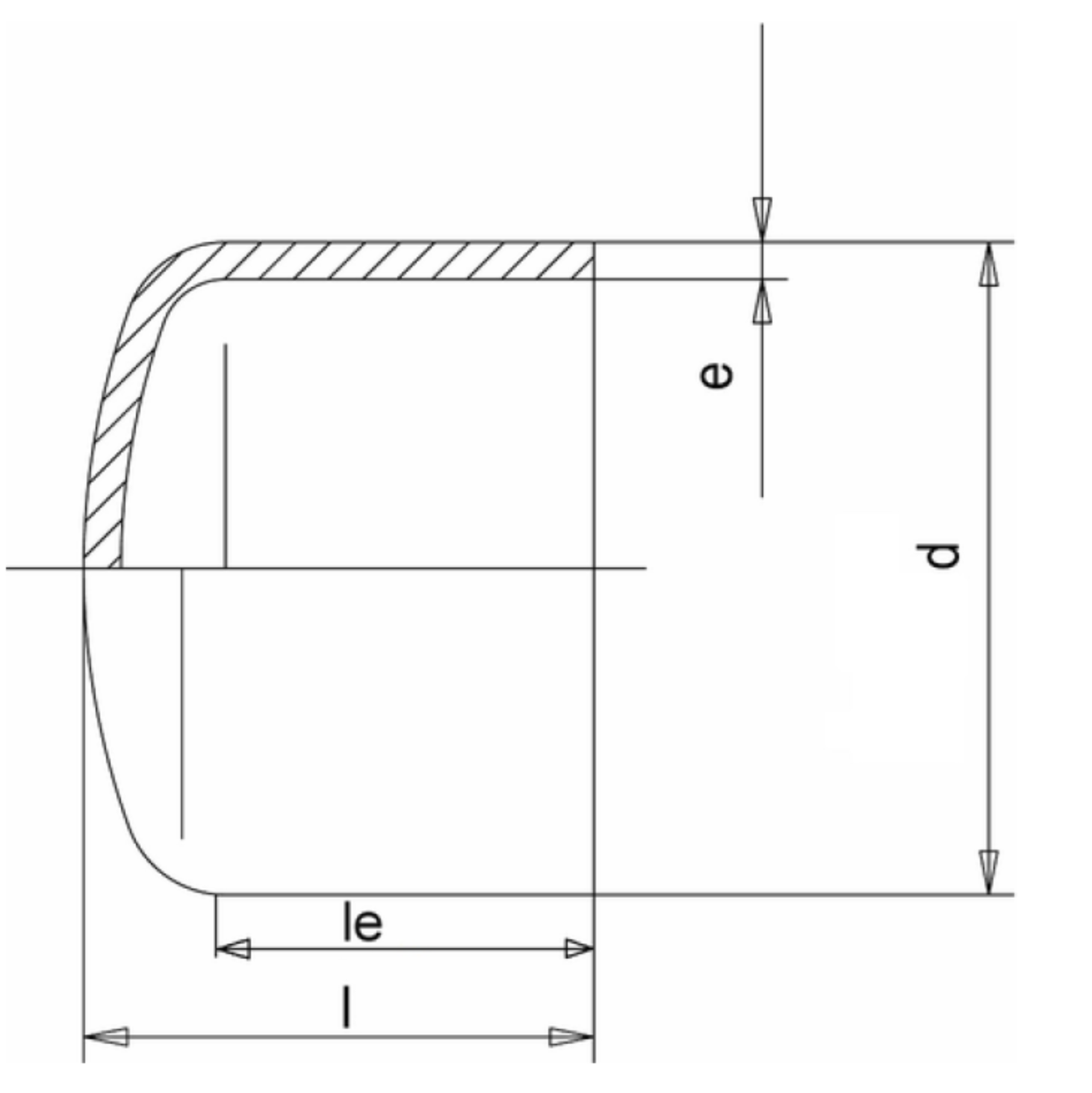
SDR 17 d (mm) 355 e (mm) 21,1 PN 10 Length (mm) 65 Weight (kg) 4,58