Javascript seems to be disabled in your browser.You must have JavaScript enabled in your browser to utilize the functionality of this website.
Welcome Guest
Zoom
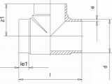
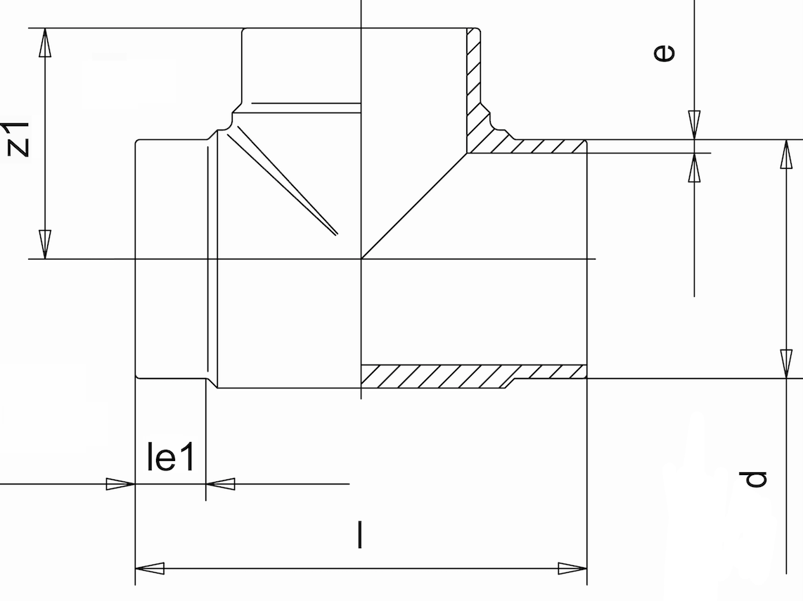
SDR 17 d (mm) 500 e (mm) 29,7 le1 (mm) 163 z1 (mm) 471 PN 10 Length (mm) 940 Weight (kg) 62,2